À Louer – Villa à usage professionnel ou éducatif - Sahloul

À Louer – Villa à usage professionnel ou éducatif - Sahloul

Sousse, Sousse Jaouhara, Sahloul

Prix sur demande

Description

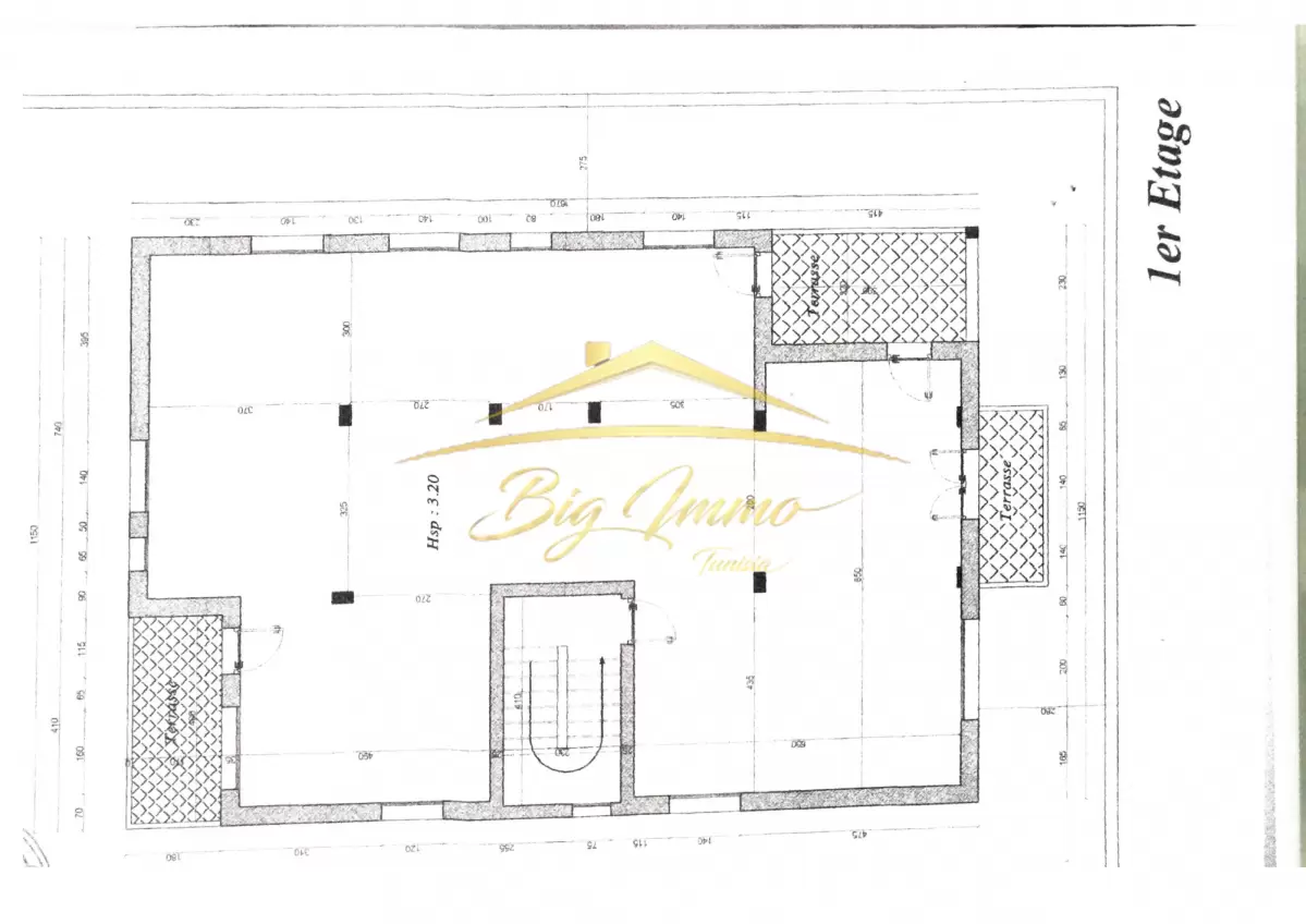
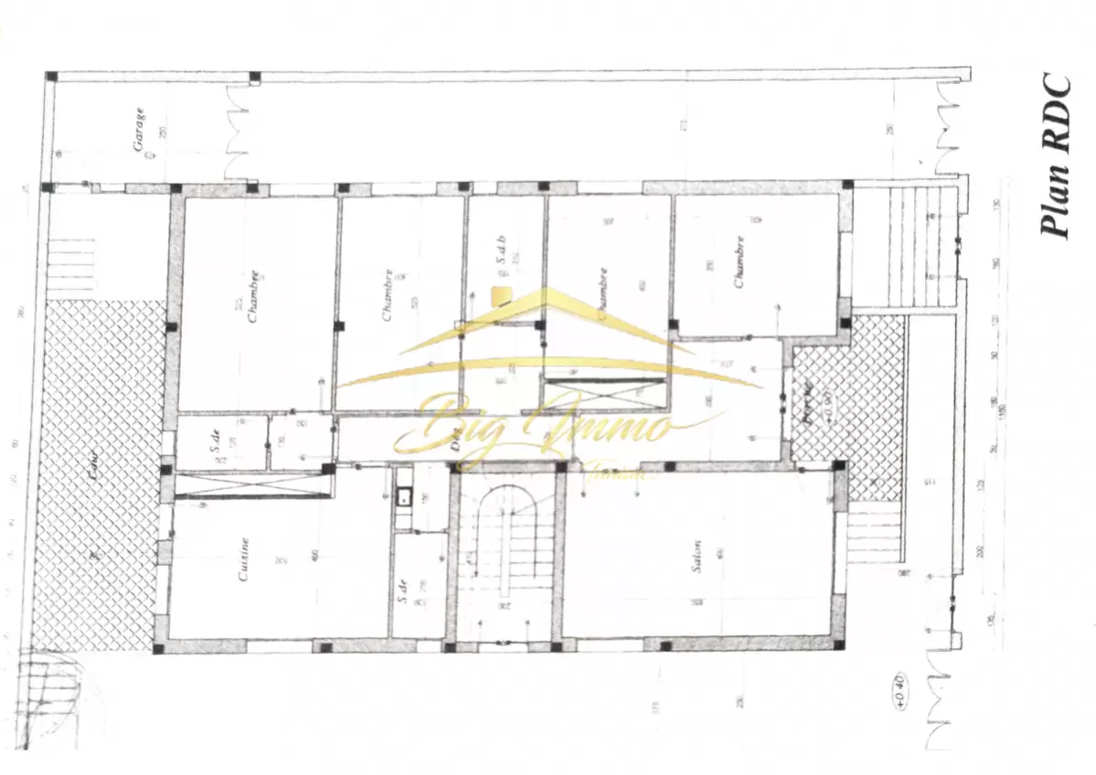
À Louer – Villa à usage professionnel ou éducatif - Sahloul Type : Villa indépendante sur 4 niveaux Usage : Professionnel, éducatif, direction de société, école privée, jardin d’enfants, cabinet Composition : 9 pièces principales 2 cuisines (dont 1 kitchenette) 2 salles de bain 3 points d’eau avec cabines 2 terrasses 1 balcon Coin salon extérieur Abri de jardin Autres atouts : Espaces extérieurs aménageables Accès facile – quartier calme Contact : 25 885 285 - 53669916

Détails
  • Référence: Ref1100a
  • Surface terrain: 400 m²
  • Nb.chambres : 6
  • Type : Immeuble
  • Vocation : Location
location
ANNONCES RÉCENTES