A Voir Terrain en relief à Vendre coté Mal

A Voir Terrain en relief à Vendre coté Mal

Sousse, Kalaa El Kebira, Kalaa El Kebira

616 000 DT

Description

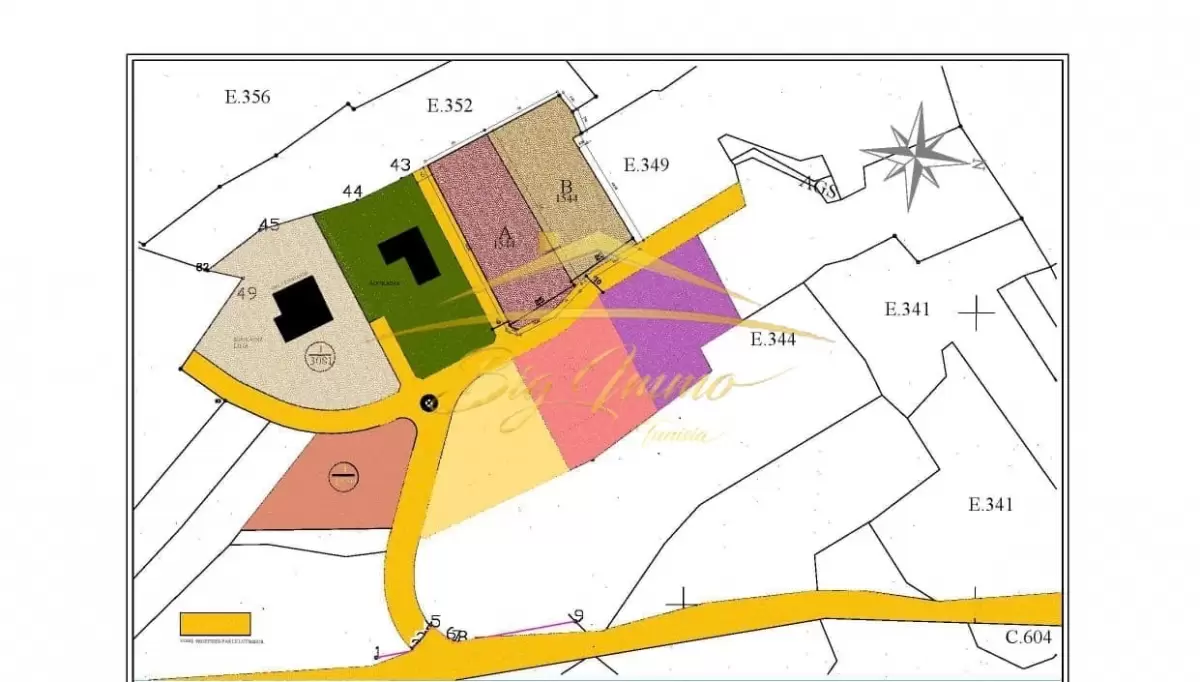
Dans un cadre agréable, sur une Parcelle complantée de 3080 m², Au calme, proche de Mall avec une vue panoramique et vue de la mer de loin, terrain Agricole, viabilité à proximité, en pleine terre Limite séparative 2 minutes des voiries ( 700m² de la route principale) . Etude de sol déjà réalisée, eau et électricité Sont disponibles.

Prix de M² est 200 Dt .

A VOIR !

* Visite : gratuite

Pour plus des renseignements , vous pouvez nous contacter sur les :

Wajdi Souayah ou Mr Brahim

94 81 84 84 // 53669916 ou 29 300 900

Email : bigimmotunisia@gmail.com

Ou Soyez les bienvenus chers clients à notre agence : Siege :

Big Immo Tunisia, Khezama Ouest , Rue Hassan Ben Said Sousse, près de librairie SIAB 4051 Sousse.

Votre confiance est notre réussite !

 

Détails
  • Référence: Ref205a
  • Surface terrain: 3080 m²
  • Type : Terrain
  • Vocation : Vente
Aventages et Commodités
    vue
  • Banlieue
  • Vue montagne
  • terrain
  • Eau potable
  • Electricité
location
ANNONCES RÉCENTES